Escola Parque Novo Santo Amaro III
Escola Parque Novo Santo Amaro III
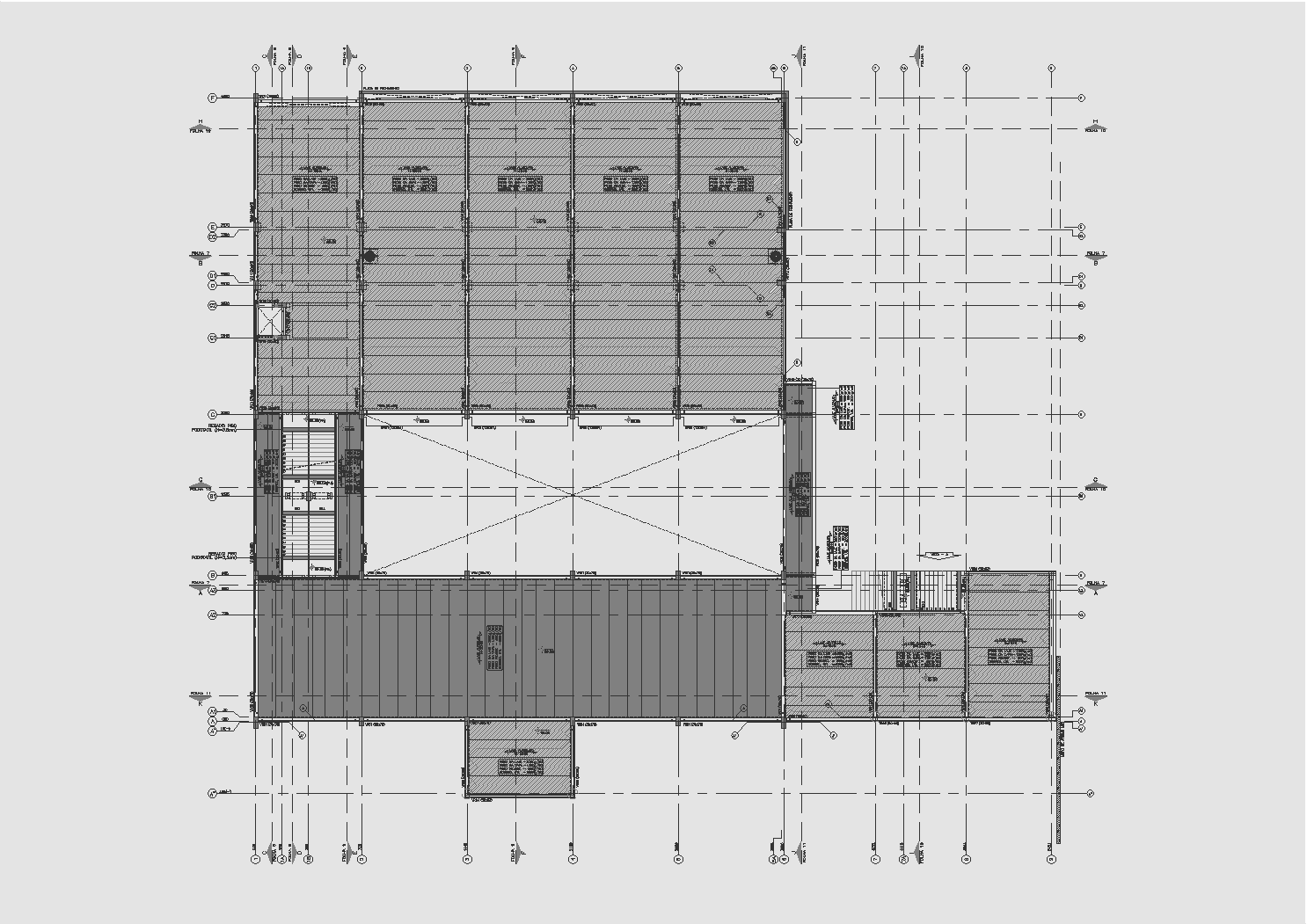
Ano: 2014 Cidade: São Paulo, SP Área: 4.900m² Área técnica: Estrutura e fundação Cliente: FDE | Shundi Iwamizu Arquitetos Associados

O projeto estrutural do prédio escolar estadual, com 4.900 m², foi projetado para se adaptar a um terreno acidentado, com a edificação distribuída em diferentes níveis, sendo parte com 3 pavimentos e outra com 4 pavimentos. A fundação foi executada com tubulões, estacas e muros de arrimo, garantindo estabilidade e suporte às variações do terreno. A estrutura é composta por pilares, vigas e placas de fechamento pré-moldados, o que proporciona agilidade na execução e alta resistência. As lajes pré-fabricadas asseguram durabilidade e eficiência, enquanto o capeamento foi detalhadamente projetado para garantir acabamento e proteção à estrutura. A cobertura é composta por elementos de concreto pré-moldado, como vigas calhas e painéis platibanda, oferecendo robustez e suporte. A estrutura foi projetada para receber os componentes metálicos de cobertura, completando a funcionalidade e resistência da edificação.






