Usina Vista Alegre
Usina Vista Alegre
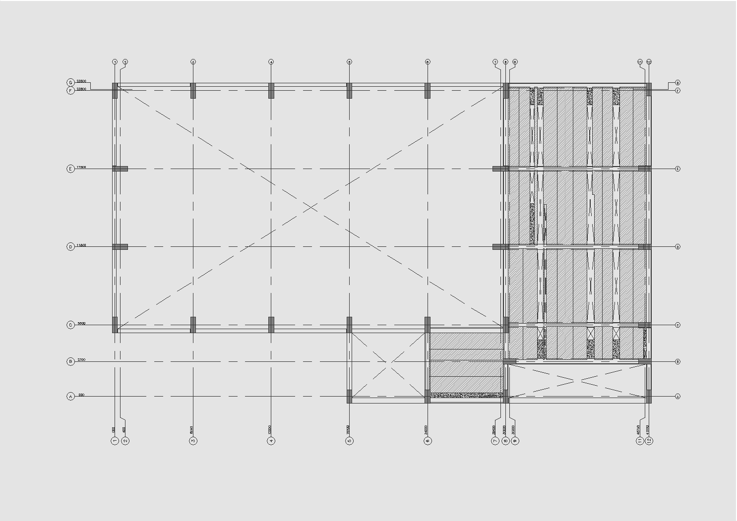
Ano: 2008 Cidade: Itapetininga, SP Área: 1.500m2 Área técnica: Estrutura e Fundação Cliente: Recupere Engenharia

A Central Elétrica da Usina de Vista Alegre, com área de 1500m² e altura de 21 metros, apresenta fundação executada com estacas e blocos, garantindo estabilidade e segurança. A construção é composta por elementos pré-moldados, incluindo pilares e vigas projetados para suportar a ponte rolante, além de lajes pré-fabricadas e capeamento detalhado, oferecendo resistência e durabilidade. A cobertura conta com uma estrutura igualmente pré-moldada, composta por vigas, vigas calha, vigas L e terças, projetadas para suportar telhas metálicas, otimizando o desempenho térmico e estrutural do edifício.













